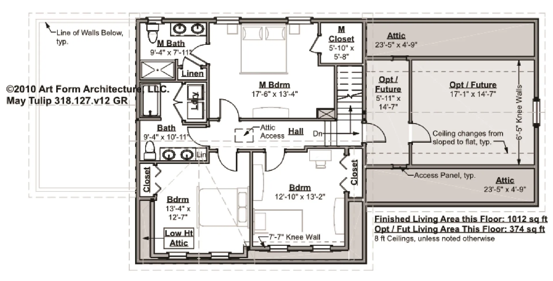
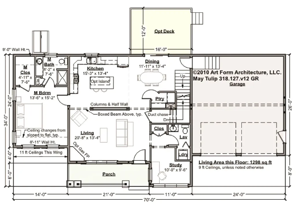
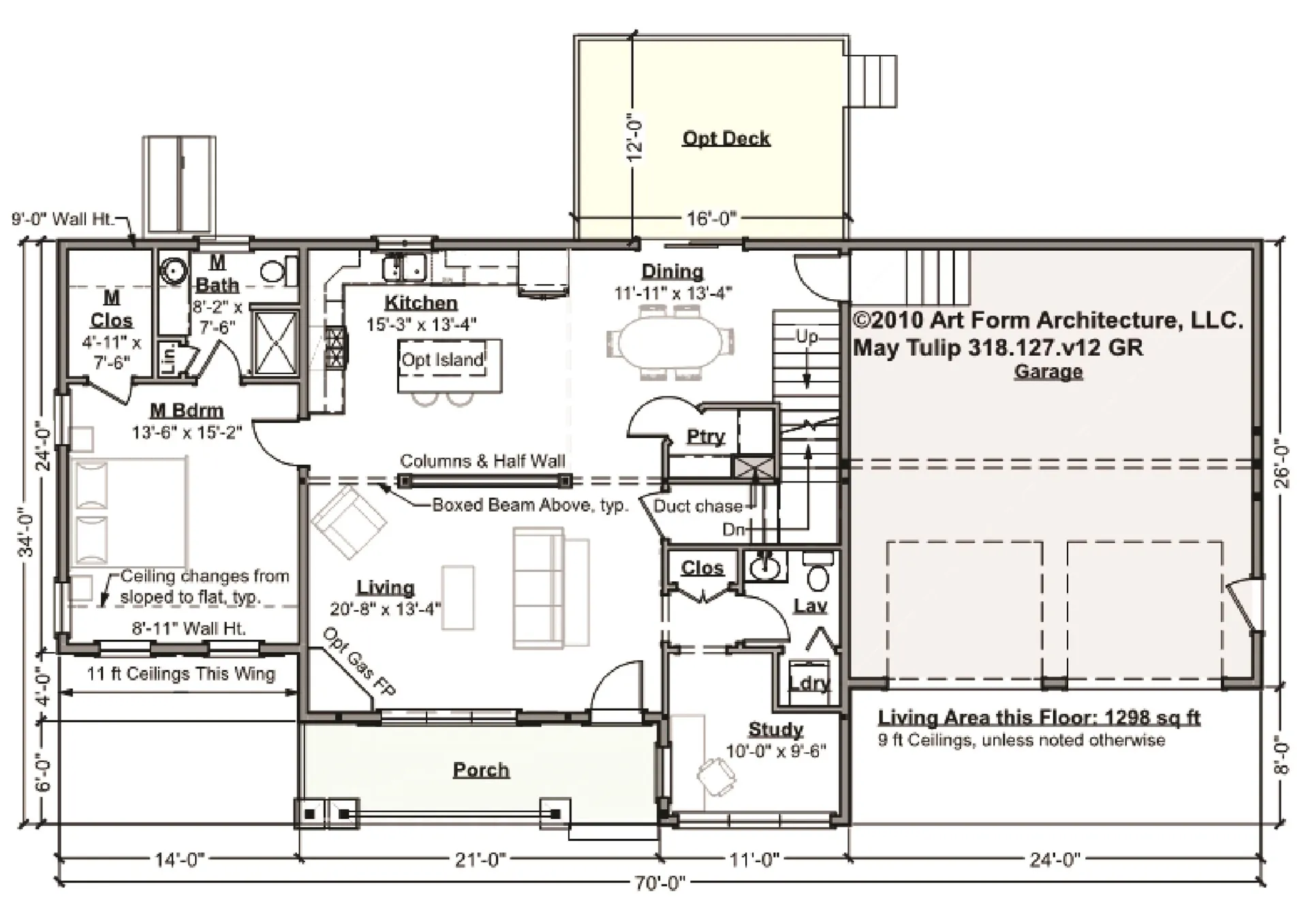
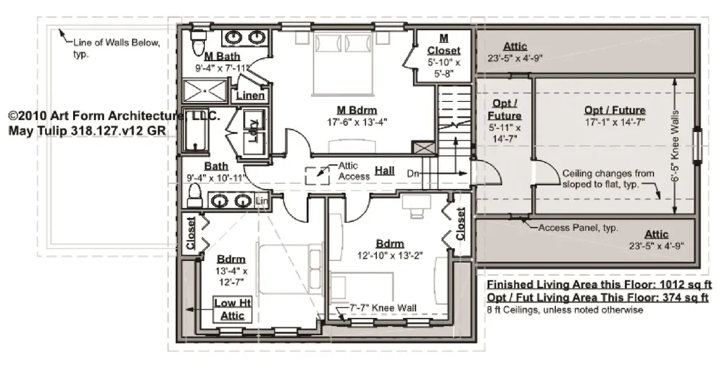
Welcome to Longview Place-a hidden gem along the Exeter River in Brentwood. This thoughtfully designed community features thirteen 2+ acre homesites, offering a rare opportunity to build your dream home in a peaceful, natural setting. Introducing the May Tulip-a 4-bedroom, 3.5-bathroom craftsman-style cape that blends timeless charm with modern comfort. With en suite bedrooms on both the first and second floors, this floor plan offers incredible versatility for a wide range of living needs-whether it's extended stays, long-term guests, or simply added privacy for household members. Step from the welcoming farmer's porch into a bright, open-concept living area that flows seamlessly into the kitchen and dining spaces. Off the kitchen, you'll find a pantry and a private study-perfect for remote work or quiet focus. A guest half bath is nearby, while the opposite wing of the home features a spacious primary suite with a large walk-in closet and private ¾ bath. Upstairs, a second en suite bedroom with its own walk-in closet and ¾ bath adds further versatility. Two additional bedrooms share a full bath with laundry, and a fully finished bonus room above the garage offers ideal space for a media room, home gym, or flex space tailored to your needs. Nestled in a serene setting yet close to major routes, Stone Creek Drive connects directly to Route 125-offering easy access to shopping, dining, and commuting options in Epping, the Seacoast, and beyond.

Listing Tools

Property Details of 8 Stone Creek Drive

Property Details

Interior Features

Utilities and Appliances

Community

Map Location

Driving Directions

Broker Reciprocity 

Copyright 2025 PrimeMLS, Inc. All rights reserved. This information is deemed reliable, but not guaranteed. The data relating to real estate displayed on this display comes in part from the IDX Program of PrimeMLS. The information being provided is for consumers’ personal, non-commercial use and may not be used for any purpose other than to identify prospective properties consumers may be interested in purchasing. Data last updated November 6, 2025 5:13 PM EST

 

Hi there! How can we help you?

Contact us using the form below or give us a call.

Send Us A Message:

I agree to receive marketing and customer service calls and text messages from Barbara Dunkle. To opt out, you can reply 'stop' at any time or click the unsubscribe link in the emails. Consent is not a condition of purchase. Msg/data rates may apply. Msg frequency varies. Privacy Policy.

Do not fill in this field:

This site is protected by reCAPTCHA and the Google Privacy Policy and Terms of Service apply.

Hi there! How can we help you?

Contact us using the form below or give us a call.

Send Us A Message:

Do not fill in this field:

This site is protected by reCAPTCHA and the Google Privacy Policy and Terms of Service apply.

Hi there! How can we help you?

Contact us using the form below or give us a call.

Send Us A Message:

Do not fill in this field:

This site is protected by reCAPTCHA and the Google Privacy Policy and Terms of Service apply.

Do not fill in this field:

This site is protected by reCAPTCHA and the Google Privacy Policy and Terms of Service apply.

Do not fill in this field:

This site is protected by reCAPTCHA and the Google Privacy Policy and Terms of Service apply.

Do not fill in this field:

This site is protected by reCAPTCHA and the Google Privacy Policy and Terms of Service apply.

$

Do not fill in this field:

This site is protected by reCAPTCHA and the Google Privacy Policy and Terms of Service apply.