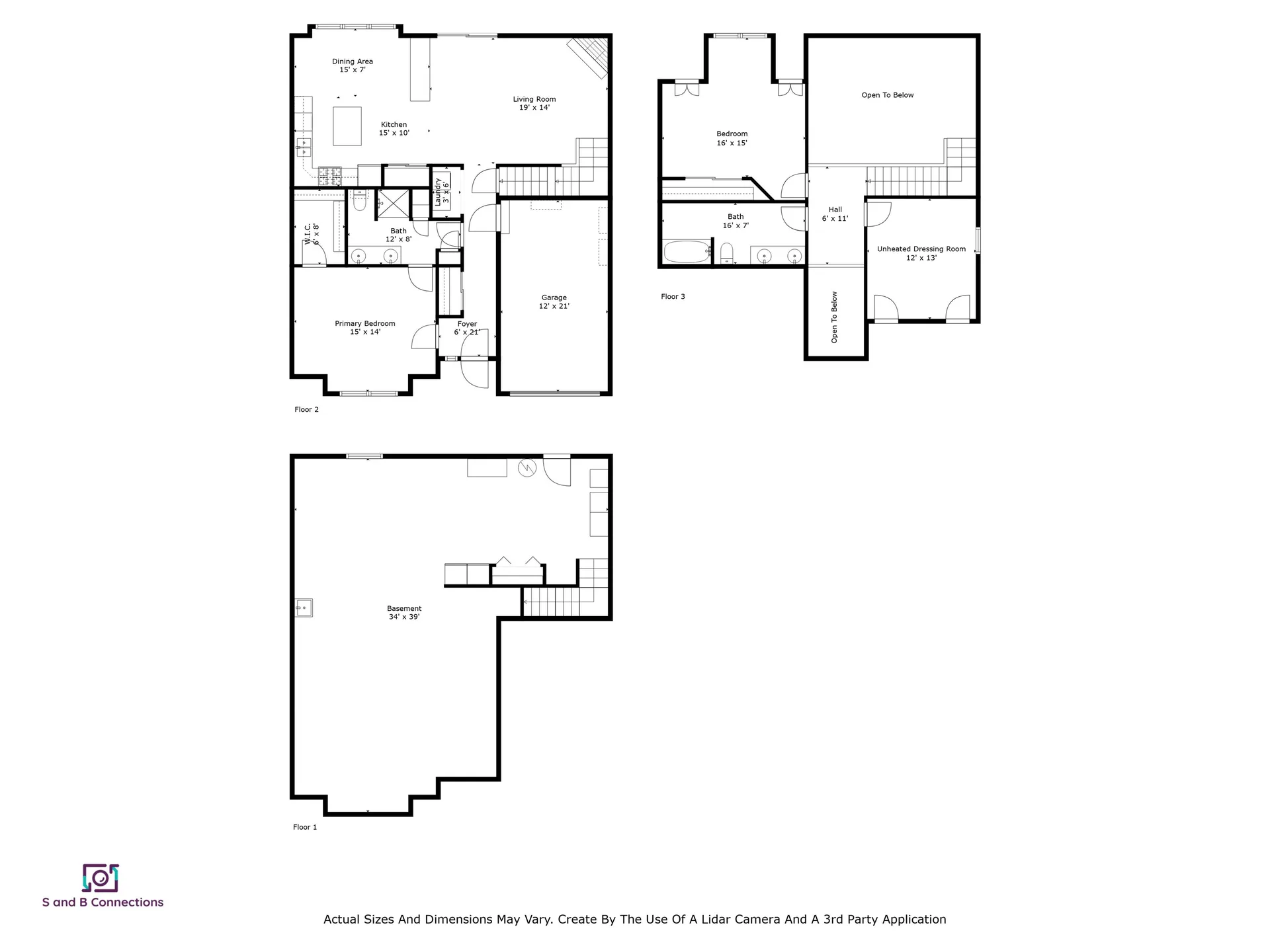
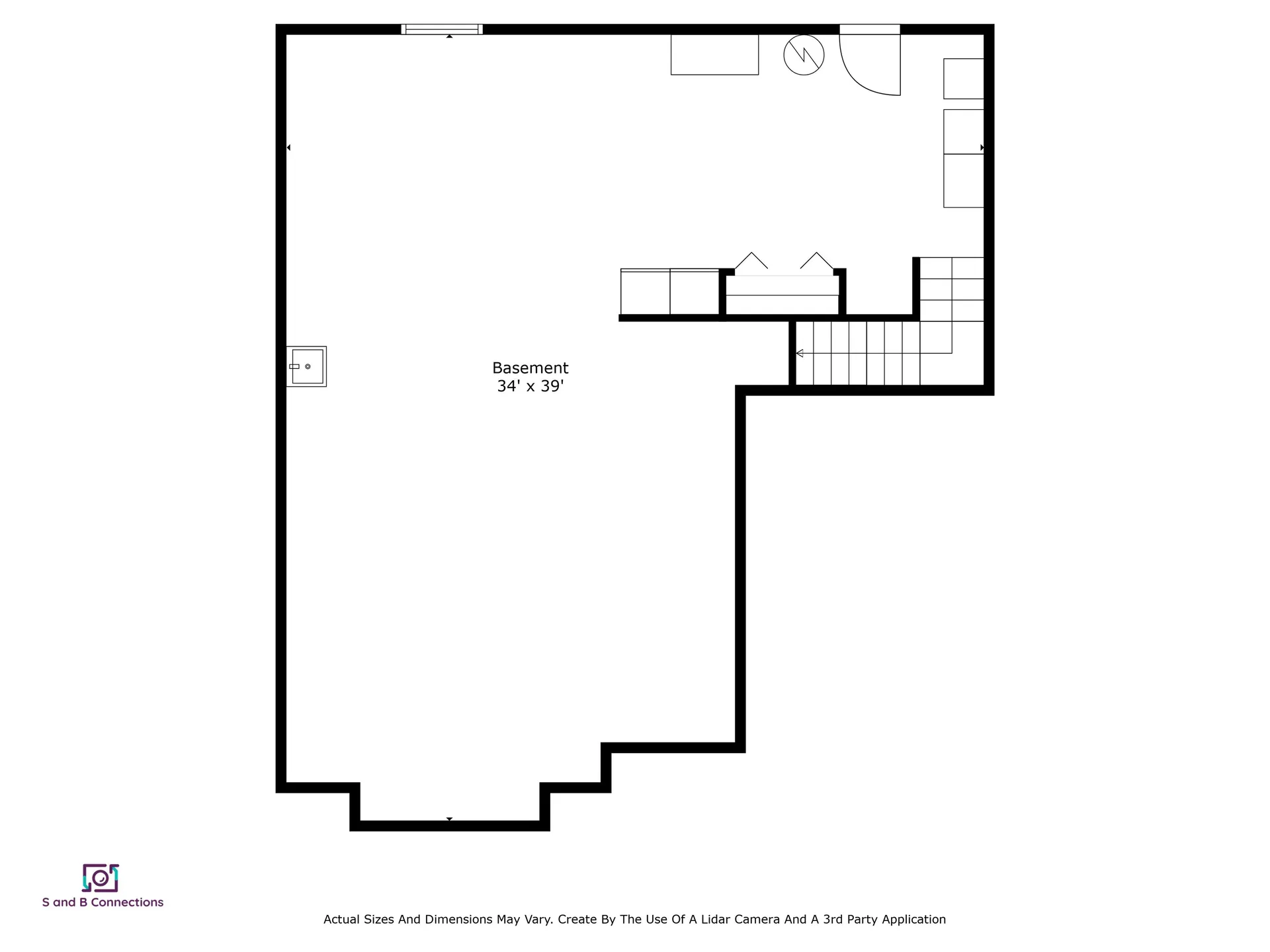
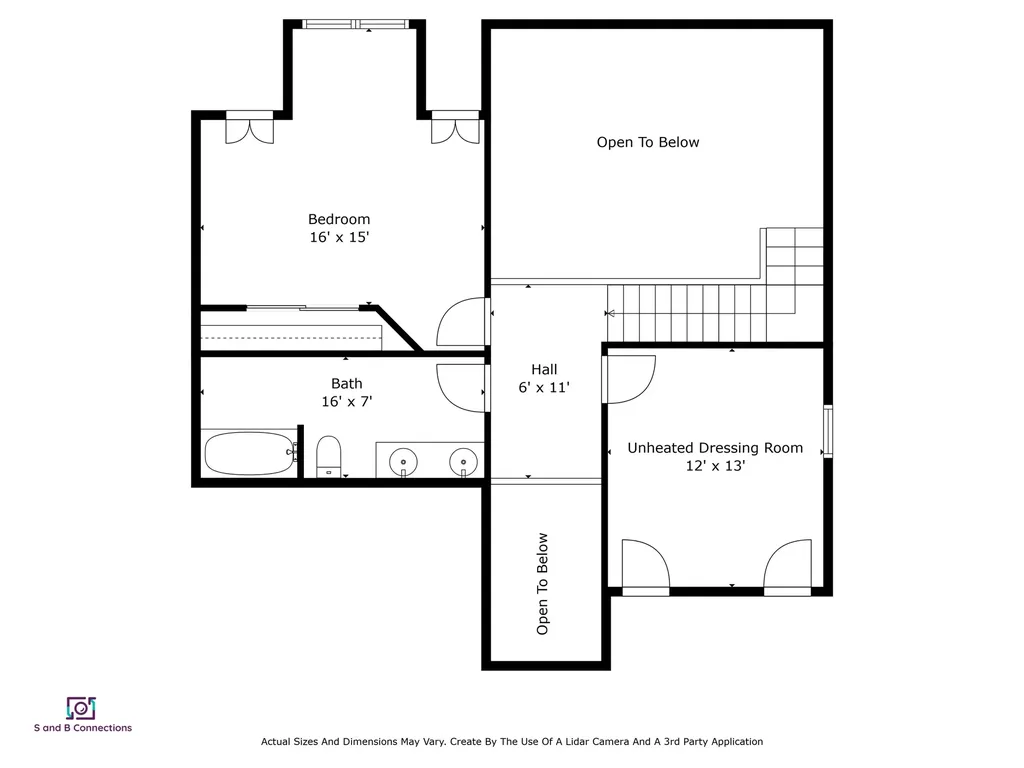
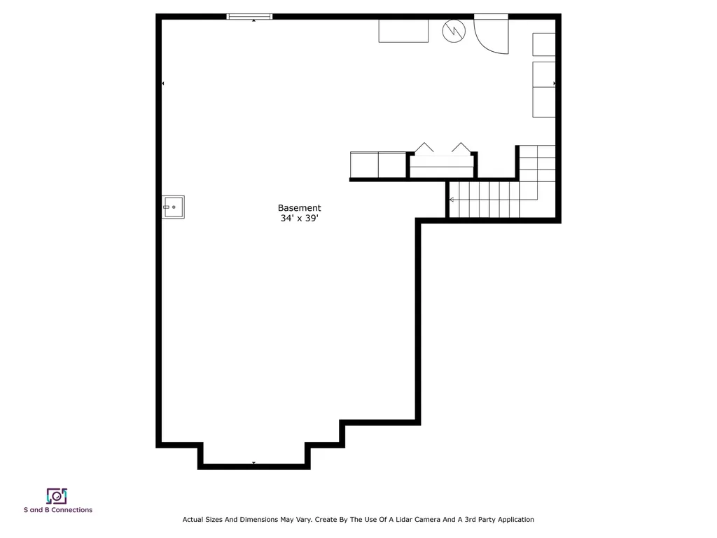
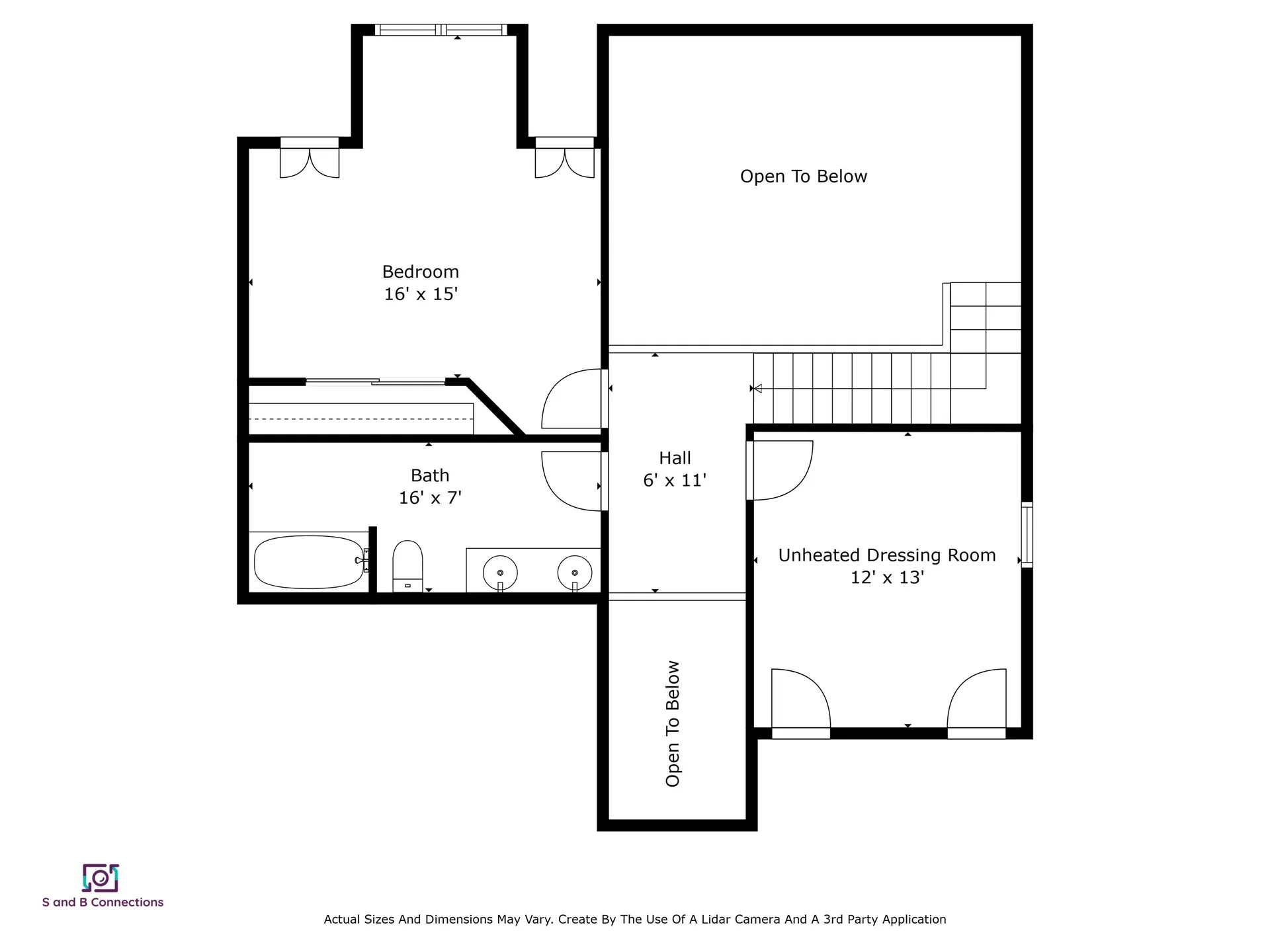
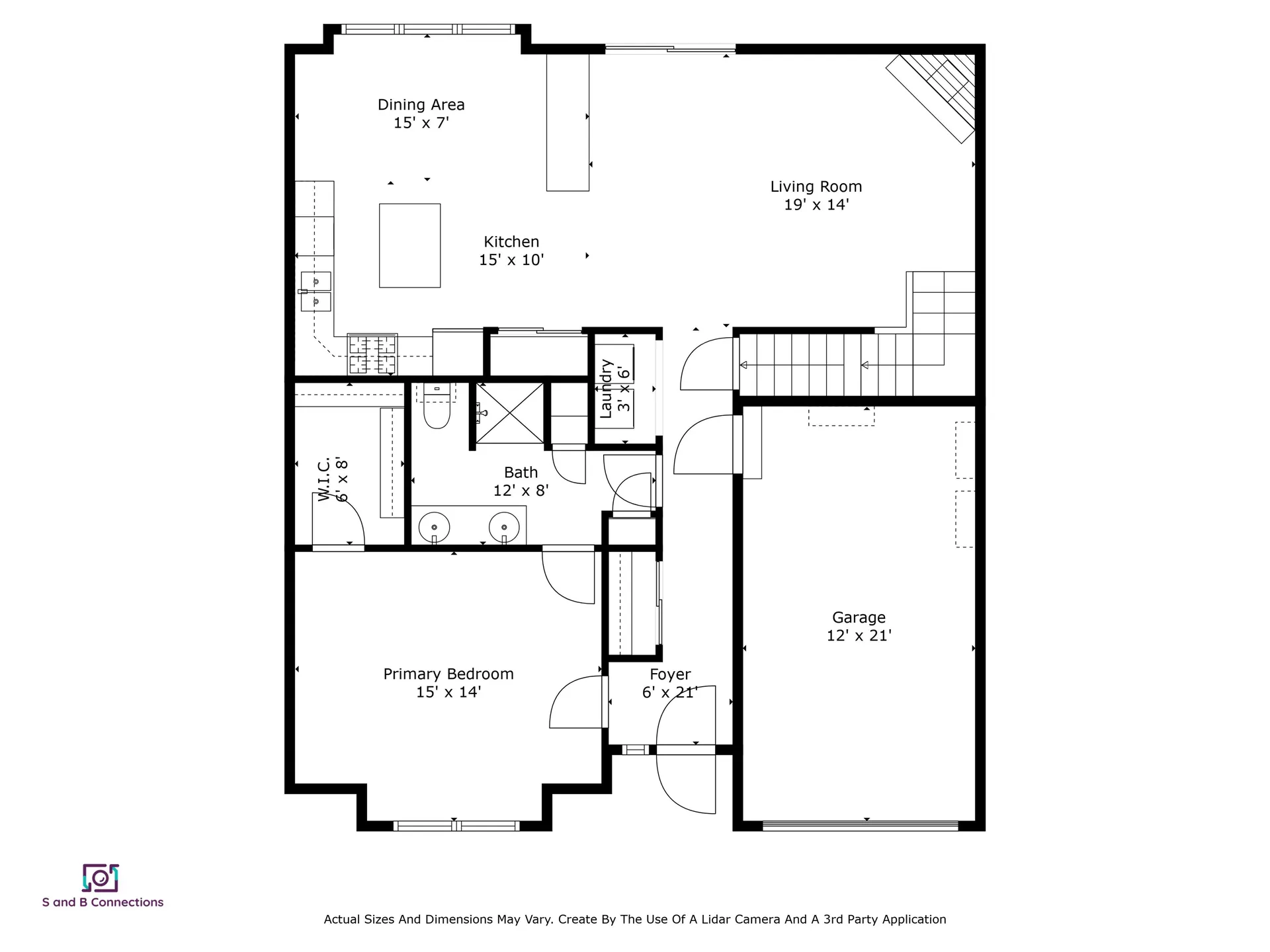
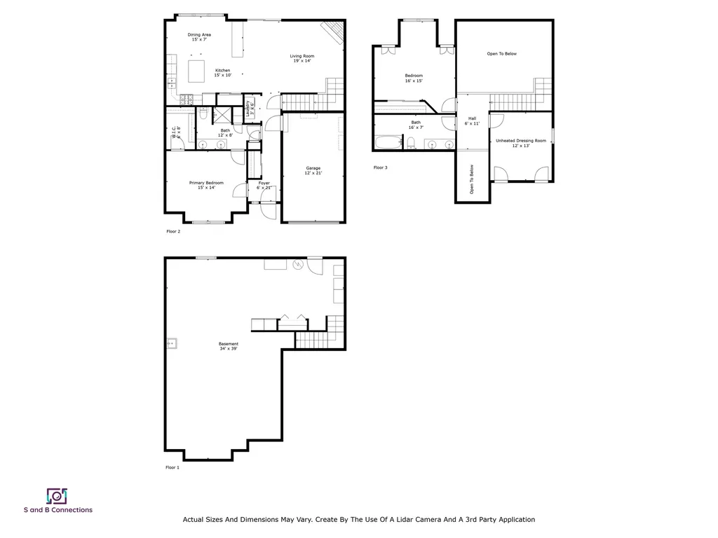
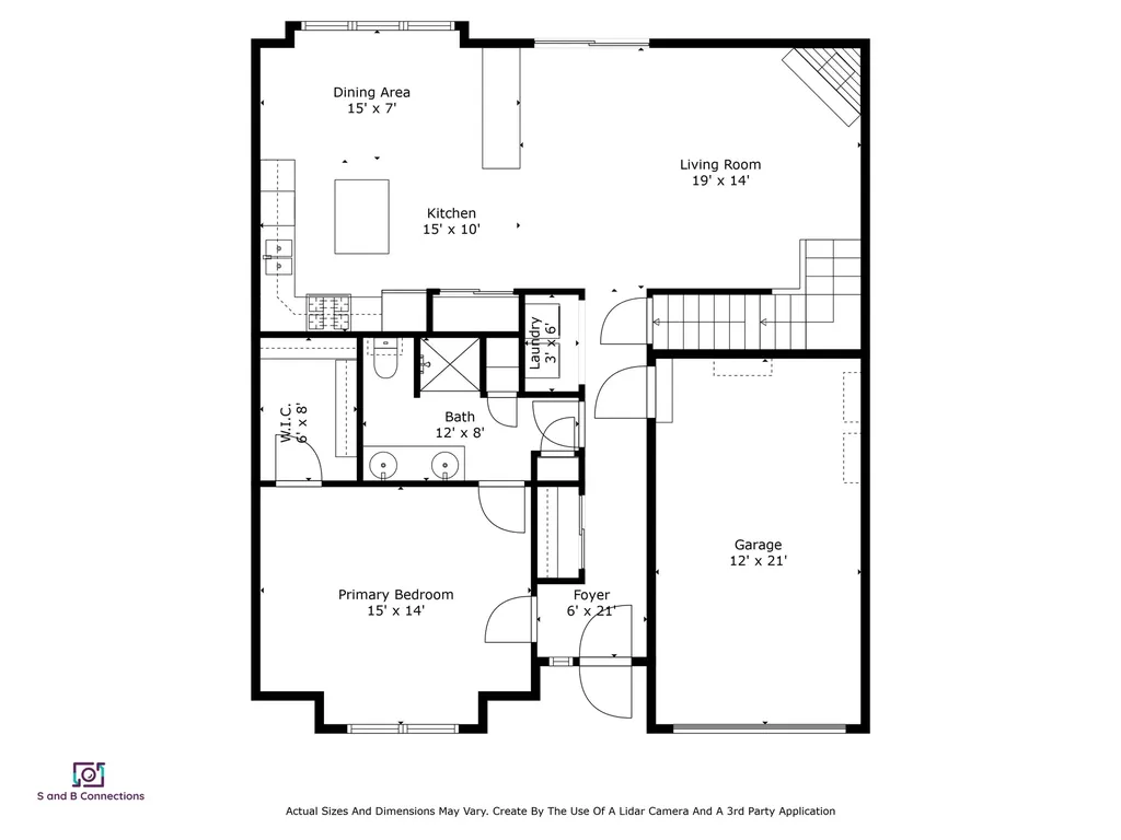
UPDATED PRICE & BRAND NEW DECK! Welcome to Rowell Estates - a charming 55+ community set in a wonderful country setting yet minutes to local amenities. You'll love this well maintained end unit with thoughtfully designed space for everyone. First floor primary suite with cathedral ceiling, walk-in closet & full bath. Cheerful & well appointed kitchen with pantry & island opens to pretty dining area overlooking the private back yard. Living room with soaring cathedral ceiling & gas fireplace leads to back deck (replaced September 2025). Back deck is great for outdoor entertaining & enjoying the birds & wildlife! Second level offers a spacious bedroom & another full bath plus a recently added 12 x 13 dressing room (unheated) - would also be a perfect guest room or office. Full basement with tons of storage, interior access & bulkhead to the back yard. Basement has plenty of daylight offering potential for additional finished space 1 car attached garage with direct entry. First floor laundry for convenience. Central air for warm weather comfort. One resident must be 55+ & 2 person limit. $1,000 conveyance fee. Pet friendly association (with restrictions). Set on 94 acres, Rowell Estates offers you the ease of maintenance free living so you can simplify and enjoy life! Visit rowellestatescondoassoc.com for additional info.

Listing Tools

Property Details of 8 Ash Drive

Property Details

Interior Features

Utilities and Appliances

Community

Map Location

Driving Directions

Broker Reciprocity 

Copyright 2025 PrimeMLS, Inc. All rights reserved. This information is deemed reliable, but not guaranteed. The data relating to real estate displayed on this display comes in part from the IDX Program of PrimeMLS. The information being provided is for consumers’ personal, non-commercial use and may not be used for any purpose other than to identify prospective properties consumers may be interested in purchasing. Data last updated November 8, 2025 7:07 AM EST

 

Hi there! How can we help you?

Contact us using the form below or give us a call.

Send Us A Message:

I agree to receive marketing and customer service calls and text messages from Barbara Dunkle. To opt out, you can reply 'stop' at any time or click the unsubscribe link in the emails. Consent is not a condition of purchase. Msg/data rates may apply. Msg frequency varies. Privacy Policy.

Do not fill in this field:

This site is protected by reCAPTCHA and the Google Privacy Policy and Terms of Service apply.

Hi there! How can we help you?

Contact us using the form below or give us a call.

Send Us A Message:

Do not fill in this field:

This site is protected by reCAPTCHA and the Google Privacy Policy and Terms of Service apply.

Hi there! How can we help you?

Contact us using the form below or give us a call.

Send Us A Message:

Do not fill in this field:

This site is protected by reCAPTCHA and the Google Privacy Policy and Terms of Service apply.

Do not fill in this field:

This site is protected by reCAPTCHA and the Google Privacy Policy and Terms of Service apply.

Do not fill in this field:

This site is protected by reCAPTCHA and the Google Privacy Policy and Terms of Service apply.

Do not fill in this field:

This site is protected by reCAPTCHA and the Google Privacy Policy and Terms of Service apply.

$

Do not fill in this field:

This site is protected by reCAPTCHA and the Google Privacy Policy and Terms of Service apply.